Ηλεκτρομηχανολογικές Μελέτες (Η/Μ) – ELTEKA Ολοκληρωμένος σχεδιασμός για ασφαλή, αποδοτικά και σύγχρονα κτίρια
Οι ηλεκτρομηχανολογικές μελέτες (Η/Μ) αποτελούν κρίσιμο στάδιο για την επιτυχημένη κατασκευή κάθε κτιρίου – από κατοικίες και πολυκατοικίες έως επαγγελματικούς και βιομηχανικούς χώρους. Στην ELTEKA, παρέχουμε εξειδικευμένες και πλήρως τεκμηριωμένες μελέτες που εξασφαλίζουν ασφάλεια, αξιοπιστία και μέγιστη ενεργειακή αποδοτικότητα.
Με εμπειρία σε όλα τα είδη έργων και βαθιά τεχνική γνώση, σχεδιάζουμε εγκαταστάσεις που ανταποκρίνονται στις σημερινές ανάγκες, ενώ παραμένουν ευέλικτες για το μέλλον.
01. Ασφάλεια και αξιοπιστία των εγκαταστάσεων
Μελετούμε και σχεδιάζουμε συστήματα που τηρούν όλους τους σύγχρονους κανονισμούς (ΕΛΟΤ HD384, ΚΕΝΑΚ, Πυροπροστασία κ.λπ.), διασφαλίζοντας ασφαλές και λειτουργικό περιβάλλον για κάθε τύπο κτιρίου.
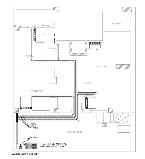
02. Ενεργειακή αποδοτικότητα & εξοικονόμηση πόρων
Οι μελέτες μας ενσωματώνουν σύγχρονες τεχνολογίες όπως αντλίες θερμότητας, αυτοματισμούς, συστήματα BMS και λύσεις LED, επιτυγχάνοντας σημαντική μείωση ενεργειακού κόστους.
03. Συμμόρφωση με τη νομοθεσία & πλήρης τεχνική τεκμηρίωση
Παραδίδουμε ολοκληρωμένους φακέλους μελέτης, έτοιμους για υποβολή σε Υπηρεσίες Δόμησης, βιομηχανικές αδειοδοτήσεις και απαιτήσεις πυροσβεστικής. Φροντίζουμε για τη σωστή τεκμηρίωση, τα αναλυτικά σχέδια, τις περιγραφές και τους υπολογισμούς.
04. Βελτιστοποιημένο σχεδιασμό για μελλοντική επέκταση & ευελιξία
Οι ηλεκτρομηχανολογικές μελέτες της ELTEKA δεν περιορίζονται στις άμεσες ανάγκες του έργου. Σχεδιάζουμε με πρόβλεψη για μελλοντικές επεκτάσεις, αναβαθμίσεις ή αλλαγές χρήσης, ώστε το κτίριο να μπορεί να εξελίσσεται χωρίς υψηλό κόστος τροποποιήσεων. Με έξυπνη χωροθέτηση εγκαταστάσεων, επιλογή μονάδων με δυνατότητα κλιμάκωσης και σχεδιασμό δικτύων που επιτρέπουν αναβάθμιση, διασφαλίζουμε ότι το έργο παραμένει λειτουργικό και αποδοτικό για πολλά χρόνια.
Γιατί να επιλέξετε την ELTEKA
- Πιστοποιημένη τεχνική εξειδίκευση
- Προσαρμοσμένος σχεδιασμός για κάθε έργο
- Έμφαση στην ενεργειακή αποδοτικότητα
- Πλήρης συμμόρφωση με νομοθεσία & πιστοποιήσεις
- Αναλυτικός και ολοκληρωμένος τεχνικός φάκελος
- Υποστήριξη σε κάθε στάδιο του έργου
- Ταχεία παράδοση χωρίς υποχωρήσεις στην ποιότητα
- Σχεδιασμός με πρόβλεψη για μελλοντικές ανάγκες
Συχνές Ερωτήσεις για Ηλεκτρομηχανολογικές Μελέτες (Η/Μ)
Τι περιλαμβάνει μια ηλεκτρομηχανολογική μελέτη;
Μια ολοκληρωμένη Η/Μ μελέτη περιλαμβάνει τον σχεδιασμό ηλεκτρικών εγκαταστάσεων, θέρμανσης/ψύξης, αερισμού, ύδρευσης–αποχέτευσης, πυροπροστασίας, ανανεώσιμων πηγών ενέργειας, αυτοματισμών και όλων των ειδικών συστημάτων που απαιτούνται για την ασφαλή λειτουργία ενός κτιρίου.
Πότε χρειάζεται Η/Μ μελέτη για ένα έργο;
Η/Μ μελέτη απαιτείται σε κάθε νέα κατασκευή, ανακαίνιση, αλλαγή χρήσης ή προσθήκη συστημάτων (π.χ. θέρμανσης, κλιματισμού, φωτοβολταϊκών). Είναι απαραίτητη τόσο για την έκδοση άδειας δόμησης όσο και για την ορθή υλοποίηση των εγκαταστάσεων.
Πόσο χρόνο χρειάζεται η εκπόνηση μιας Η/Μ μελέτης;
Ο χρόνος διαφέρει ανάλογα με το μέγεθος και την πολυπλοκότητα του έργου. Μικρές κατοικίες μπορεί να ολοκληρωθούν σε λίγες ημέρες, ενώ μεγαλύτερα επαγγελματικά ή βιομηχανικά έργα απαιτούν περισσότερες εβδομάδες. Στην ELTEKA δίνουμε πάντα σαφές χρονοδιάγραμμα.
Ποια είναι τα οφέλη μιας σωστής Η/Μ μελέτης;
Τα βασικά οφέλη είναι: αυξημένη ασφάλεια, εξοικονόμηση ενέργειας, χαμηλότερο κόστος λειτουργίας, μεγαλύτερη διάρκεια ζωής των εγκαταστάσεων και πλήρης συμμόρφωση με τους κανονισμούς.
Μπορείτε να πραγματοποιήσετε επίβλεψη κατά την κατασκευή;
Ναι. Η ELTEKA μπορεί να αναλάβει πλήρη επίβλεψη Η/Μ εγκαταστάσεων ώστε η υλοποίηση να ακολουθεί πιστά τη μελέτη και τα τεχνικά πρότυπα.
Παρέχετε μελέτες για βιομηχανικούς χώρους και μεγάλα έργα;
Ναι, αναλαμβάνουμε μελέτες εξοικονόμησης ενέργειας, επιλογή αποδοτικών συστημάτων (αντλίες θερμότητας, LED, αυτοματισμούς) και προτάσεις για αναβάθμιση υφιστάμενων εγκαταστάσεων.
Χρειάζονται αναθεωρήσεις σε παλιές Η/Μ μελέτες;
Σε πολλές περιπτώσεις, ναι. Παλαιότερες μελέτες μπορεί να μην πληρούν τους σύγχρονους κανονισμούς ή να μην ανταποκρίνονται στις σημερινές ανάγκες. Αναλαμβάνουμε επικαιροποίηση και αναθεώρηση μελετών.
Ενδεικτικά έργα μας
Πρόκειται για έργο εγκατάστασης επίτοιχου λέβητα φυσικού αερίου 24 kW…
Πρόκειται για έργο εγκατάστασης επίτοιχου λέβητα φυσικού αερίου 25 kW…



